• zurück zür Übersicht

DUO 116 - Doppelhäuser von Cuffaro

In vielen Regionen, vor allem Ballungsräumen, sind Grundstücke rar und die m²-Preise steigen. Die Doppelhauhälfte bietet sich an, wenn die Grundstückspreise und –größen den Bau eines freistehenden Hauses nicht zulassen, aber dennoch auf einen gewissen Komfort nicht verzichtet werden soll. Neben einer günstigen Flächenausnutzung gibt es als positiven Nebeneffekt so gut wie keinen Wärmeverlust an der geteilten Wand. Umso wichtiger ist eine gute Schallisolierung der gemeinsamen Wand – und eine gute Nachbarschaft.

 

  Kurz und Knapp

 

  • Außenmaße je Haushälfte: 5,00 m x 11,00 m
  • Wohnfläche:ca. 116,14 qm
  • Nettogrundfläche inkl. Keller: ca.154,75 qm

KONTAKT

 0 72 47 - 980 83 10

Infopaket per E-Mail anfordern

Formular wird gesendet...

Auf dem Server ist ein Fehler aufgetreten.

Formular empfangen.

Grundrissvariante

ERDGESCHOSS

 

 

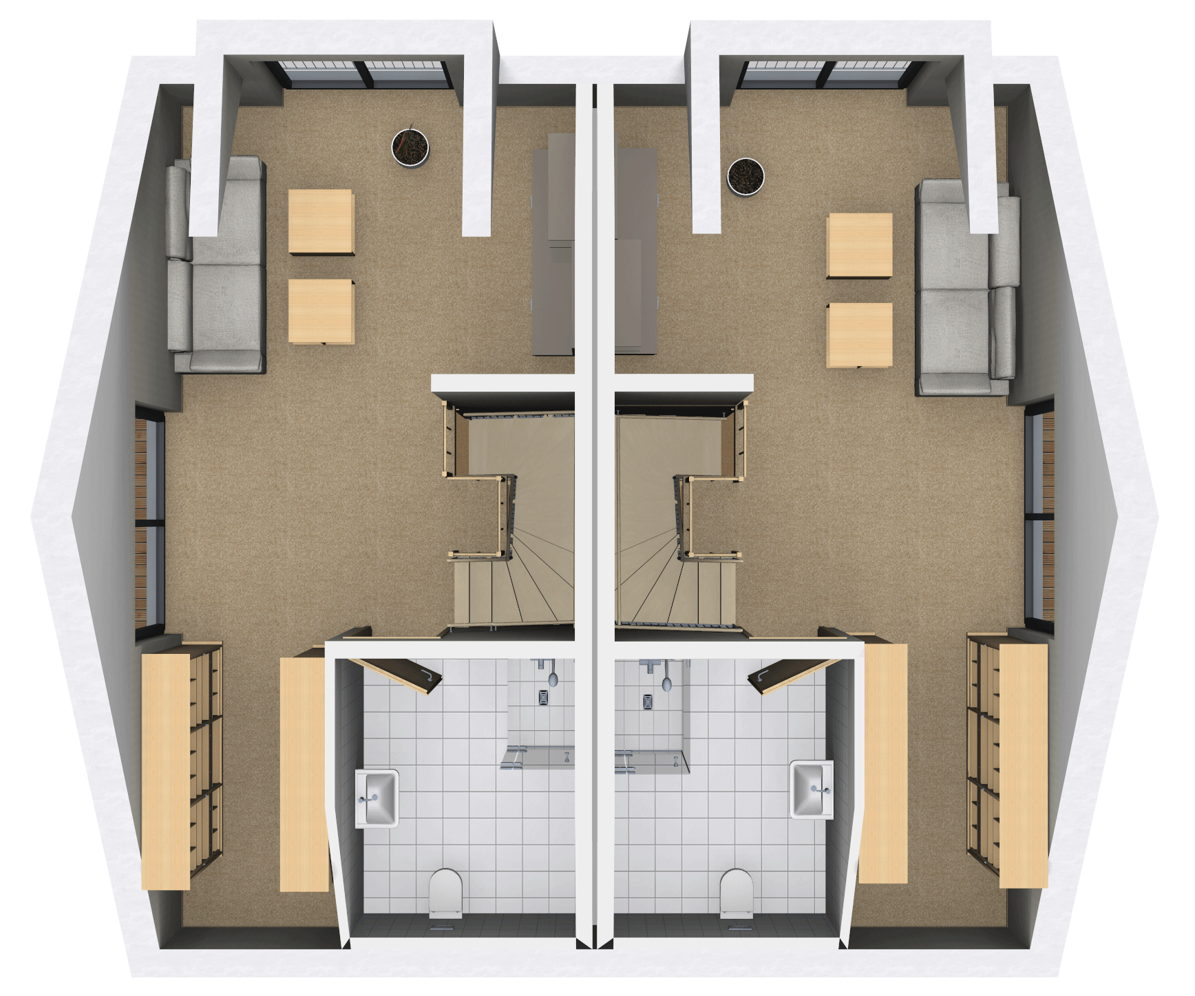
OBERGESCHOSS

 

 

DACHGESCHOSS

 

 

KELLERGESCHOSS

 

 

Cuffaro Wohnkonzepte GmbH

Hauptstraße 131

76351 Li.Hochstetten

 

Fon: 07247 - 98 08 310

Fax: 07247 - 98 08 319

 

post@cuffaro-wohnkonzepte.de

 

Impressum

Unsere Servicezeiten

 

Mo-Fr

08:30 Uhr - 12:00 Uhr

13:00 Uhr - 20:00 Uhr

 

Sa

09:00 Uhr - 16:00 Uhr